rbhu
Home
People
Projects
Debris
Blogs
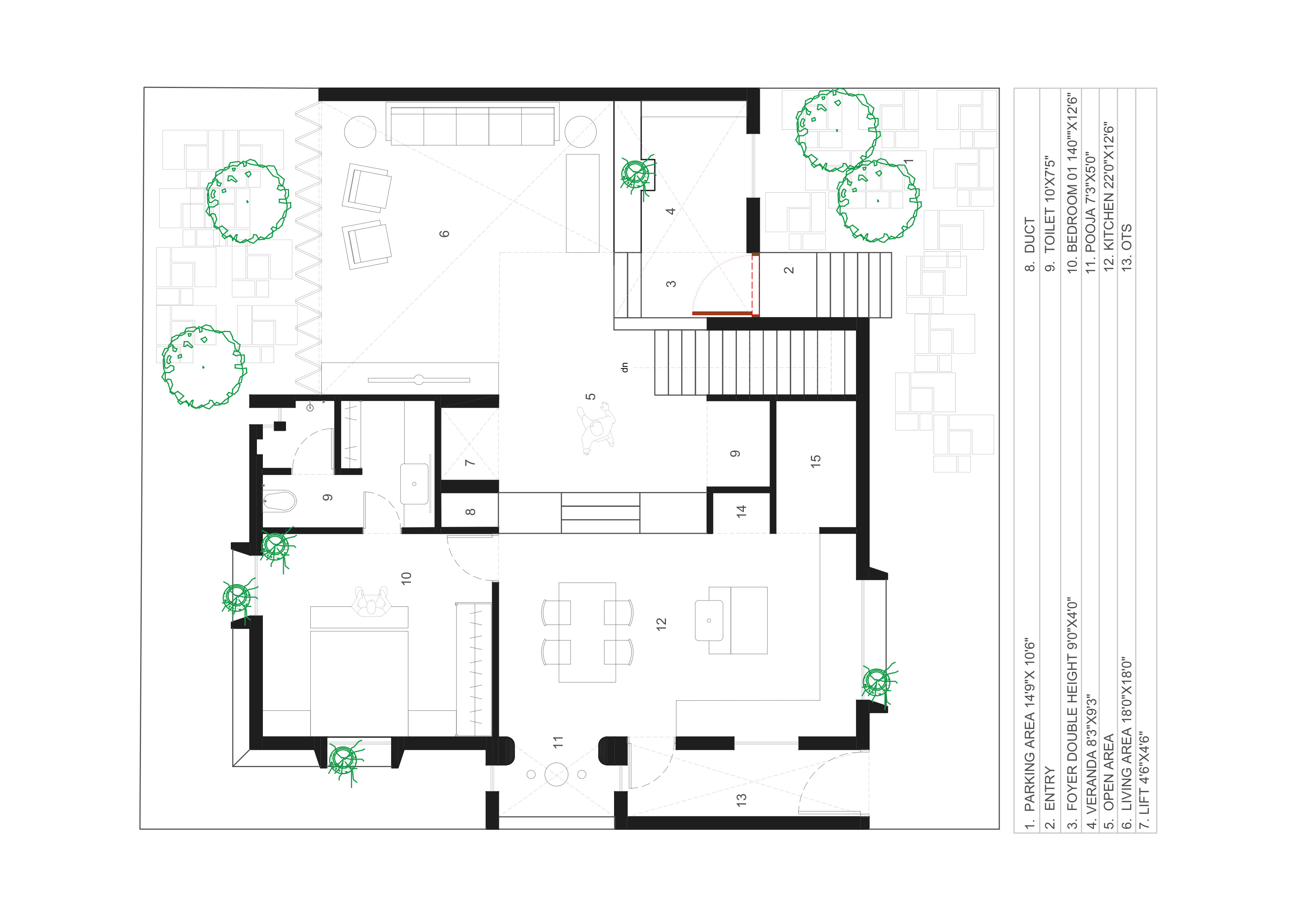
SINGALA HOUSE
Private Residence
Rajkot
2024
Private
Back