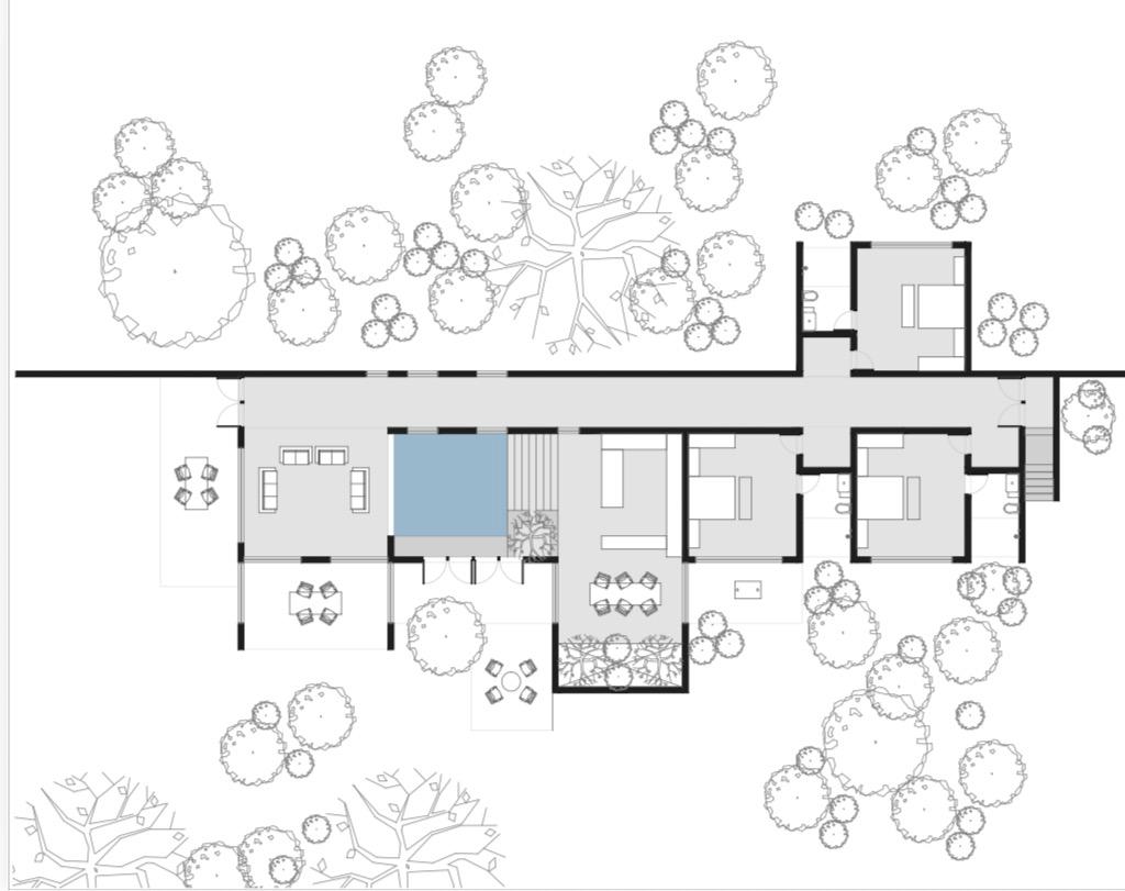
AXIS

Resident

Gujarat

2026

ON - GOING
A contemporary linear home organized along a central spine, where a serene courtyard anchors light, ventilation, and movement. Spaces flow seamlessly from public to private, blending indoor living with surrounding greenery for a calm, balanced lifestyle.