21 X 45

Private Residence

Rajkot

2025

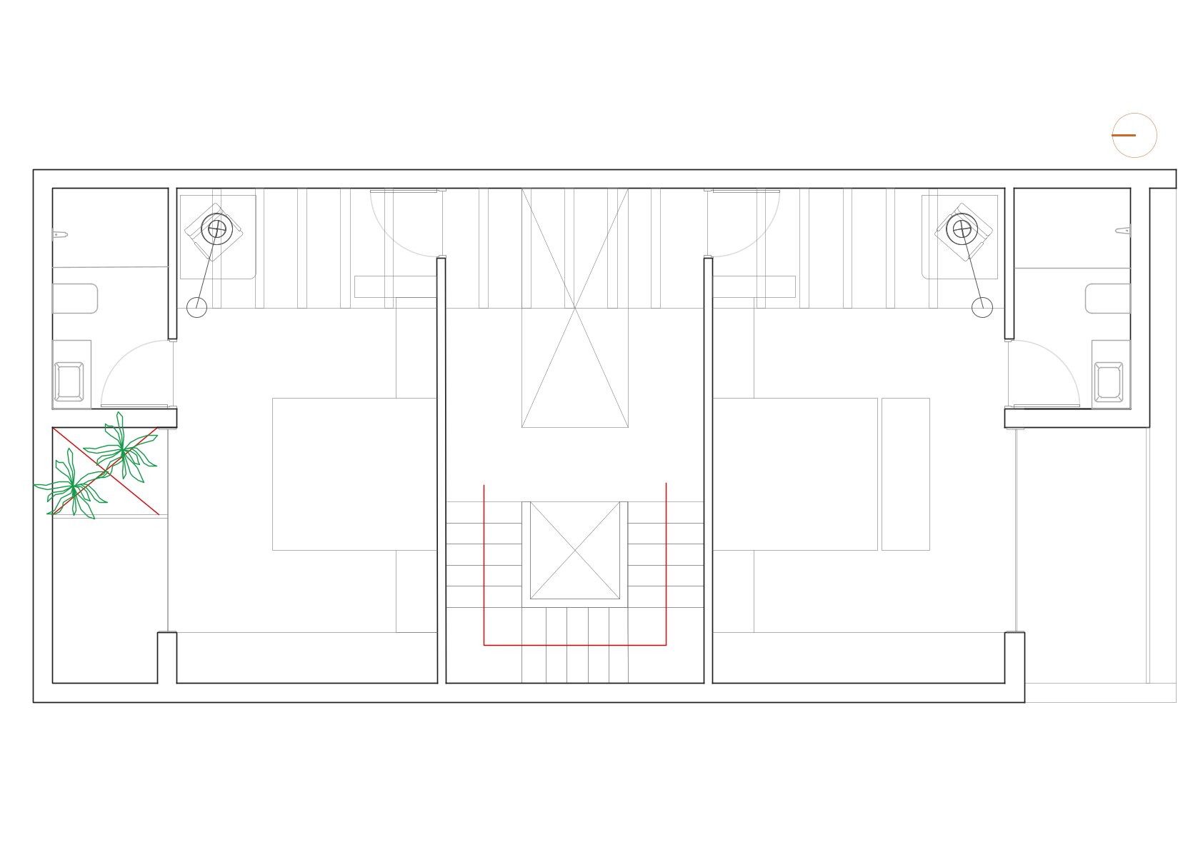
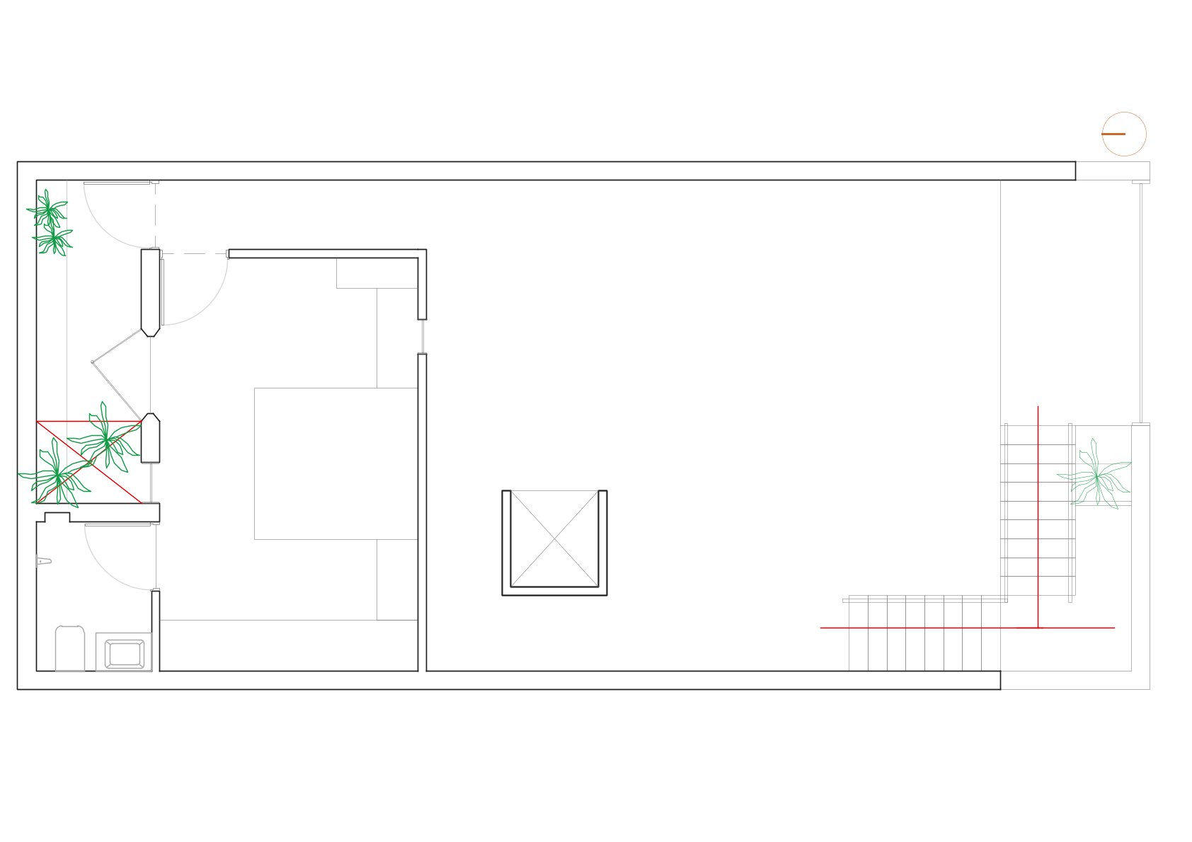
An unbuilt residence for a family of four, designed on a 21’ x 45’ west-facing plot in the heart of the bustling old city. Set within a gated community and surrounded by the dense urban fabric, the project posed a clear challenge to craft a functional layout and comfortable living environment within a compact footprint.

The design explores light, volume, and spatial connection to overcome site constraints, creating openness and fluidity typical of compact housing. Through its focus on proportion light, and spatial clarity, Lightwell Residence redefines small-site living transforming limitation into an expression of calm, connected urban dwelling.